Restaurante en traspaso al lado de la Plaza del Ayuntamiento
Valencia (CENTRO) - REF. 1288
231 m2 20 m2 2
traspaso: 180.000 €
Descripción

Restaurante en traspaso a escasos metros de Plaza del Ayuntamiento, con licencia definitiva, terraza para 20 m², salida de humos a azotea y totalmente reformado y equipado.

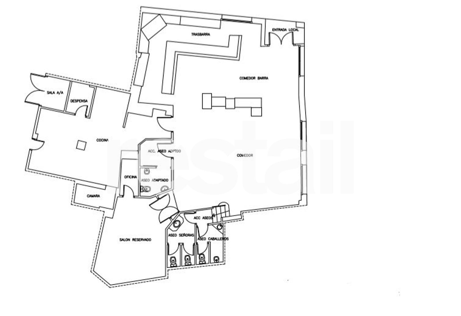
Local comercial de 200 m² aproximadamente, espacio diáfano, totalmente reformado, cuenta con ventanas grandes y la entrada cristalera.


Local se distribuye en una gran barra de copas a la entrada del restaurante, un amplio comedor con un espacio de diseño, un segundo gran comedor igualmente en planta baja y cocina diáfana totalmente equipada.

Dispone de tres cuartos de aseo, uno de ellos habilitado para personas con movilidad reducida.

Cuenta con una gran terraza con capacidad para 7-8 mesas de superficie de 20 m².


Licencias y permisos: 

- Licencia de actividad definitiva del restaurante;

- Licencia de terraza para 20 m²;

- Salida de humos a azotea.


Condiciones económicas:

- Traspaso*: 180.000 €;

- Renta mensual actual**: 4.500 €, más los impuestos que correspondan;

- Gastos de comunidad e IBI: a cargo de la arrendadora;

- Fianza: 2 mensualidades; 

- Garantías adicionales: aval bancario o depósito adicional.


* El importe de traspaso incluye la transmisión de las licencias de actividad a nombre del nuevo arrendatario, igual que la transmisión de todas las instalaciones, mobiliario y maquinaria.

 ** Posibilidad de la subida de la renta en un 20%, al realizar el traspaso, según el art. 32 de la LAU.


Ubicación:

Se encuentra situado a pocos metros de la Plaza del Ayuntamiento de Valencia, zona muy bien comunicada, con gran paso de gente. En esta zona nos encontramos con grandes cadenas de restauración, como pueden ser, McDonald´s, Burger King, KFC, 100 Montaditos, Lizarran, Foster´s Hollywood…


La información proporcionada es de carácter informativo y puede contener errores. Está sujeta a posibles modificaciones sin previo aviso y no tiene carácter contractual.


Por motivos de discreción no se publica la dirección exacta del local, por favor, para más información no dude en contactarnos.


En Restail, nos especializamos en locales para negocios de restauración y ofrecemos una amplia cartera de propiedades destinadas a actividades de hostelería con alta rentabilidad. No dude en ponerse en contacto con nosotros para obtener más información. 

Características
Año de construcción 1960
Construidos 231 m2
Útiles 200 m2
Baños 2
Cocina Amueblada
Estado Muy buen estado
Aire acondicionado
Salida de humos
Adaptado
Calificación Energética (D) VER
Luz
Agua
Acceso discapacitados
Visita Virtual
Ubicación
La dirección del inmueble es aproximada.
Escalas de eficiencia


-
-

Contáctanos

Si deseas más información sobre esta propiedad, por favor, rellena el formulario.

 Sí, he leído y/o acepto las Condiciones de uso y la Política de privacidad
Inmuebles similares:
 
Ref. 1302  187 m2  2

Licencia definitiva, salida de humos a fachada, continuo paso de gente.

 
Ref. 1303  200 m2  2

Licencia definitiva de actividad, salida de humos a azotea, totalmente preparado para seguir con la actividad.